| |
 |
| |
|
|
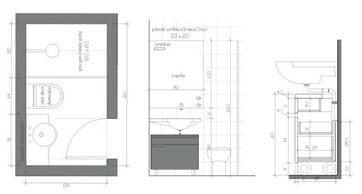
O banheiro criado para o rapaz possui uma área bem pequena, mas cheio de charmes e detalhes que o tornam funcional elegante. Um ambiente como este pede que o projeto seja pensado nos detalhes. O módulo projetado exclusivamente para esse espaço aproveita ao máximo da área embaixo da pia. A pequena bancada soluciona o problema de espaço e os metais da mesma foram trocados por linha para parede. O misturador e a arandela fixados no espelho dão um charme a mais.
|
|
| |
|
|